Артикул:
Т50-02
45 ₽
/пог. м
В корзину
Купить в 1 клик
Доступна доставка по России.
С менеджером можно обсудить
удобную транспортную компанию.
С менеджером можно обсудить
удобную транспортную компанию.
Описание
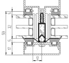
Термовставка под стеклопакет 32 мм для фасадных систем СИАЛ КП50, АЛЮТЕХ ALT F50, KRAUSS KRF-50, INICIAL IF 50. Длина 6м, 3м. Упаковка 50 хлыстов.
Подробности
Цена действительна только для интернет-магазина и может отличаться от цен в розничных магазинах
Термовставка (термомост, терморазрыв) для алюминиевых конструкций (окон, витражей) устанавливают в алюминиевый профиль для заполнения 30, 32, 34 и 36 мм.
Отзывы
Оставить отзыв
Загрузка отзывов...
Новости
Ситипласт розница
—
26.06.2023
Уплотнитель ТПУ-6001 и Термовставка Т50-02 для культурно-досугового центра. г. Приморск.
Наша компания поставляет ТПУ-6001 и Т50-02 для культурно-досугового центра, г. Приморск, ЛО.
Статьи
Обзоры товаров
Какие уплотнители использовать, какие варианты уплотнителей подойдут для минусовых температур. Подробности в статьях от СитиПласт.
Заявку на Термоэластопласт (ТЭП/SEBS) можно оформить по телефону +7 (911) 290-05-25 , +7(963)742-37-37 или отправить на почту citiplast@yandex.ru
Заявку на Термоэластопласт (ТЭП/SEBS) можно оформить по телефону +7 (911) 290-05-25 , +7(963)742-37-37 или отправить на почту citiplast@yandex.ru
Обзоры товаров
Что такое Термовставка, где используется, как повышается теплоэффективность алюминиевого профиля. Подробности в статьях от производителя уплотнителей и резиновых смесей - СитиПласт.
Заявку на Термовставку для алюминиевого профиля можно оформить по телефону +7(963)742-37-37, +7 (911) 290-05-25 или отправить на почту sityplast2008@yandex.ru
Заявку на Термовставку для алюминиевого профиля можно оформить по телефону +7(963)742-37-37, +7 (911) 290-05-25 или отправить на почту sityplast2008@yandex.ru
Обзоры товаров
Как проводить тестирование уплотнителей, как разобраться в качестве уплотнителей. Подробности в статьях от производителя уплотнителей и резиновых смесей - СитиПласт.
Заявку на уплотнители можно оформить по телефону +7 (963) 742-37-37 или отправить на почту sityplast2008@yandex.ru
Заявку на уплотнители можно оформить по телефону +7 (963) 742-37-37 или отправить на почту sityplast2008@yandex.ru
